您好,欢迎进入河南省中原丝瓜IOS官网下载安装实业有限公司官方网站!

与时俱进,诚赢客户

丝瓜视频成人污版、提梁机、门式丝瓜视频在线播放黄网站机生产厂家

服务电话:13782575673

技术资料

您现在所在位置:首页>>技术资料>>5吨L型电动葫芦门式丝瓜视频在线播放黄网站机性能参数

5吨L型电动葫芦门式丝瓜视频在线播放黄网站机性能参数

本文链接:http://www.hhpeixun.com/jszc/1358.html   发布时间:2022-01-21 10:49:31  点击量:1937

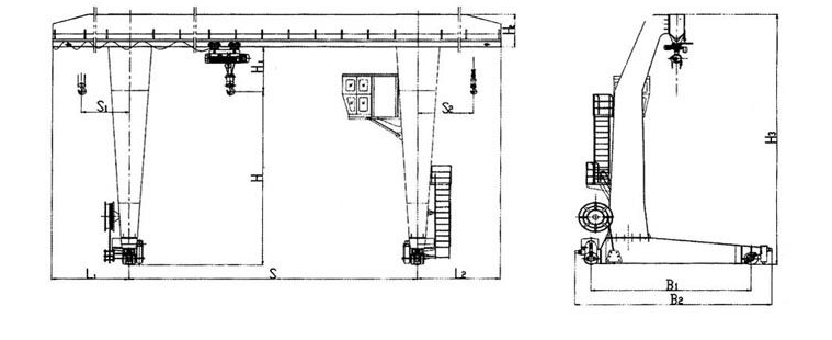
  L型电动葫芦门式丝瓜视频在线播放黄网站机就是指以电动葫芦胡芦做为起吊组织的L型单承重梁丝瓜视频在线播放黄网站机,与基本MH型丝瓜视频在线播放黄网站机不一样的是其支脚样子像英文字母L,故得其名。我为各位详细介绍下5吨L型电动葫芦丝瓜视频在线播放黄网站机性能参数。

  L型电葫芦门式丝瓜视频在线播放黄网站机结构图

L型电葫芦门式丝瓜视频在线播放黄网站机结构图

  L型电葫芦门式丝瓜视频在线播放黄网站机性能参数图

L型电葫芦门式丝瓜视频在线播放黄网站机结构图

文章聚合页面: L型 丝瓜视频在线播放黄网站机参数 丝瓜视频在线播放黄网站机结构

技术资料

联系丝瓜IOS官网下载安装

CONTACT US

联系人:徐经理

手机:13782575673

电话:0373-8611375

邮箱:hnzyaqqz@126.com

官网:www.hhpeixun.com

地址:河南长垣丝瓜视频在线播放黄网站工业园区华豫大道中段

网站地图